Highgate, VT | Lot 1A Woods Lane

$334,900
MLS#: 5052753
1492
SQ. Feet
1.27
Acres
2
Baths
3
Bedrooms
1 of 36

General Property Information

Property Status:
Active
Price:
$334, 900
Assessed:
$0
Assessed Year:
County:
VT-Franklin
Acres:
1.27
Property Type:
Mobile Home
Year Built:
Agency/Brokerage:
Brendan Deso
Home Run Realty, LLC
Bedrooms:
3
Total Baths:
2
Sq. Ft. (Total):
1492
Tax Year:
Taxes:
$0
Association Fees:

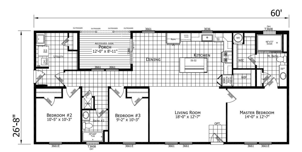
Woods Lane in Highgate Center is now under construction. Lot 1A is 1.27 acres and is to be paired with a new Energy Star rated manufactured home. This 1, 492 sq ft home is as beautiful as it is functional. Its owners will enjoy a built-in covered porch off the dining area, a large island, a walk-in pantry, a walk-in tile shower in the master bath, a spacious utility/laundry room, an Energy Star upgrade package with insulated skirting, and much more. The site is currently being partially cleared, with road and utility construction underway in the coming weeks. Upon completion, the lot will remain partially wooded for added privacy and character. If this home does not meet your needs or budget, please inquire for other multi-section manufactured home options available. Lot 1A is to be paired with this or any other new multi-section manufactured home available through Deso Homes, LLC—a local manufactured housing retailer in Highgate. Disclosure: Listing Agency's Managing Broker is the owner of Deso Homes, LLC.

Interior Features

# Of Stories:
1
Sq. Ft. (Total):
1492
Sq. Ft. (Above Ground):
1492
Sq. Ft. (Below Ground):
0
Sq. Ft. Unfinished:
108
Rooms:
9
Bedrooms:
3
Baths:
2
Interior Desc:
Kitchen Island, Laundry Hook-ups, Walk-in Closet, Walk-in Pantry
Appliances Included:
Dishwasher, Range Hood, Microwave, Refrigerator, Electric Stove, Owned Water Heater
Flooring:
Carpet, Vinyl
Heating Cooling Fuel:
Water Heater:
Basement Desc:

Exterior Features

Style of Residence:
Manuf/Mobile
House Color:
Time Share:
No
Resort:
Exterior Desc:
Exterior Details:
Covered Porch
Amenities/Services:
Land Desc.:
Level, Wooded
Suitable Land Usage:
Roof Desc.:
Architectural Shingle
Driveway Desc.:
Crushed Stone
Foundation Desc.:
Concrete Slab
Sewer Desc.:
1000 Gallon, Conventional Leach Field, Leach Field On-Site
Garage/Parking:
No
Garage Spaces:
0
Road Frontage:
200

Other Information

Source: Data provided by PrimeMLS, graph generated by Pall Spera Company
List Date:
2025-07-22
Last Updated:

Stowe Office

Sherry Wilson

(P) 802.253.9771
(F) 802.253.9993
email

Ask About this Property
Your Name:


Your Email Address:


Message: